
CASA CERCAL





























PROJECT Casa Cercal
LOCATION Cercal do Alentejo, Santiago do Cacém
PROGRAM New Construction, House
AREA 250 sqm
YEAR 2018
ARCHITECTURE TEAM Filipe Rodrigues, Inês Vicente, Marta Frazão,
Filipa Neiva, Joana Matos, Ricardo Carvalho
ENGINEERING NCREP/DAJ
CONSTRUCTION João Bernardino, Construções Ecológicas
PHOTOGRAPHS Richard John Seymour
In Cercal House, time and space are not separate dimensions but are interdependent. There is the time that corresponds to the cycles of nature, the time of those who inhabit the place, and the space that is shaped and influenced by them.
Alentejo - the location of the house - is also a challenge. As Miguel Torga says, Alentejo represents "the maximum and the minimum we can aspire to: the wilderness of an infinite dream and the reality of an exhausted soil." [1]
The Cercal House is thus a proposal that explores the possibilities of a new time and space in a place also marked and altered by the novelty of the house, ultimately aiming to build a renewed commitment between man and the landscape.
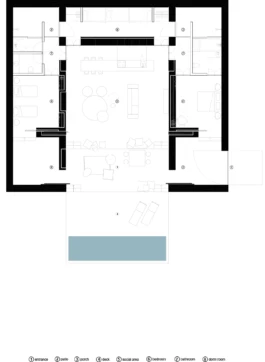
Located on terrain with a halfpipe morphology influenced by a water line that crosses it, the house is partially sunken into one of the slopes divided by the river, next to the remains of an old construction. The search for the right position and solar orientation, combined with a volumetry that seeks a skillful dialogue with the slope and the best visual horizon, synthesizes the main intervention strategy.
[1] quote from Miguel Torga’s book “Portugal”.
CASA CERCAL


























PROJECT Casa Cercal
LOCATION Cercal do Alentejo, Santiago do Cacém
PROGRAM Construction, House
AREA 250 sqm
YEAR 2018
ARCHITECTURE TEAM Filipe Rodrigues, Inês Vicente, Marta Frazão, Filipa Neiva, Joana Matos, Ricardo Carvalho
ENGENEERING NCREP/DAJ
CONSTRUCTION João Bernardino, Construções Ecológicas
PHOTOGRAPHS Richard John Seymour